Valence (26000)

Maison 9 pièce(s) 5 chambre(s) 204 m²

1
2
391 m²
430 000 €
Réf 10229

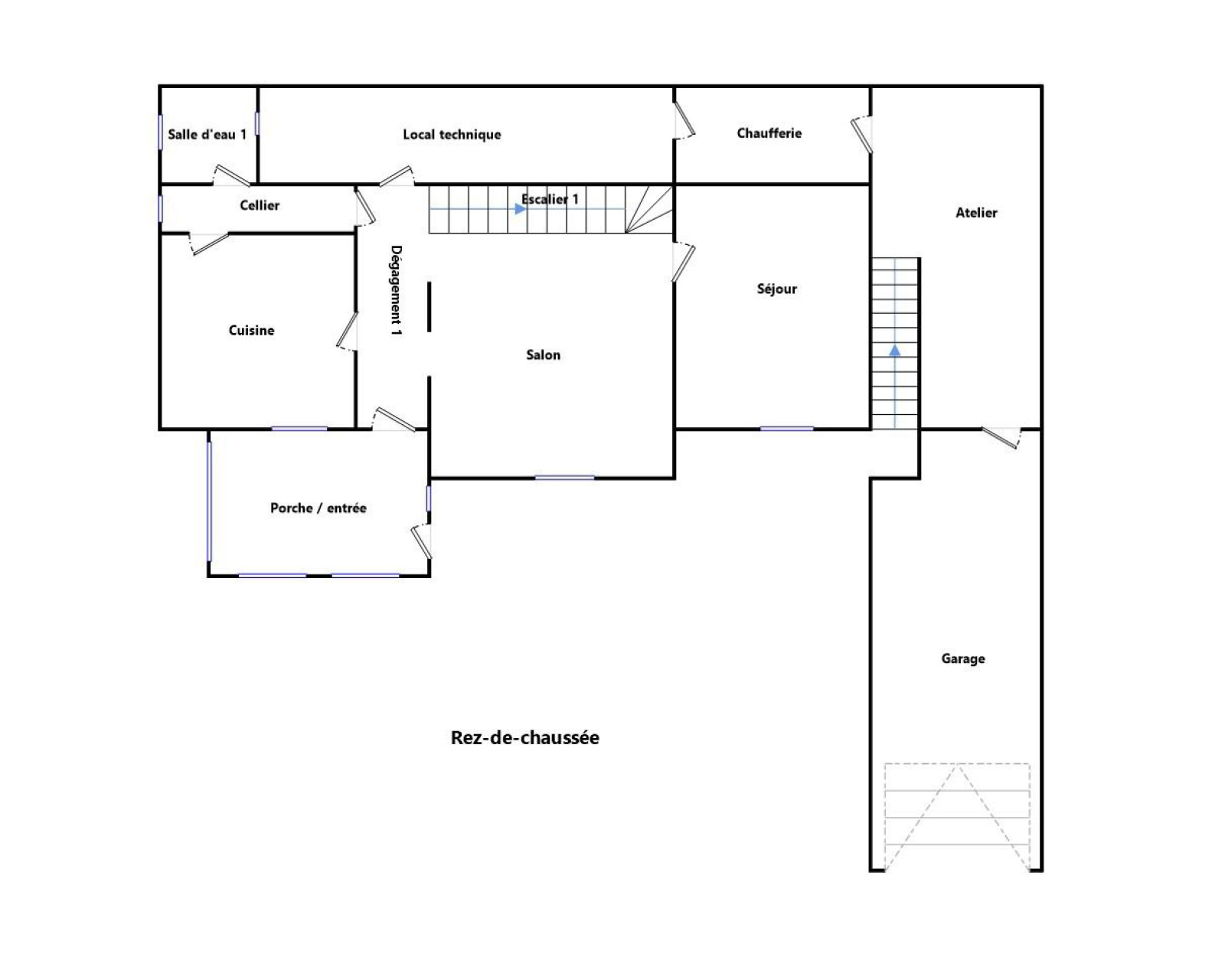
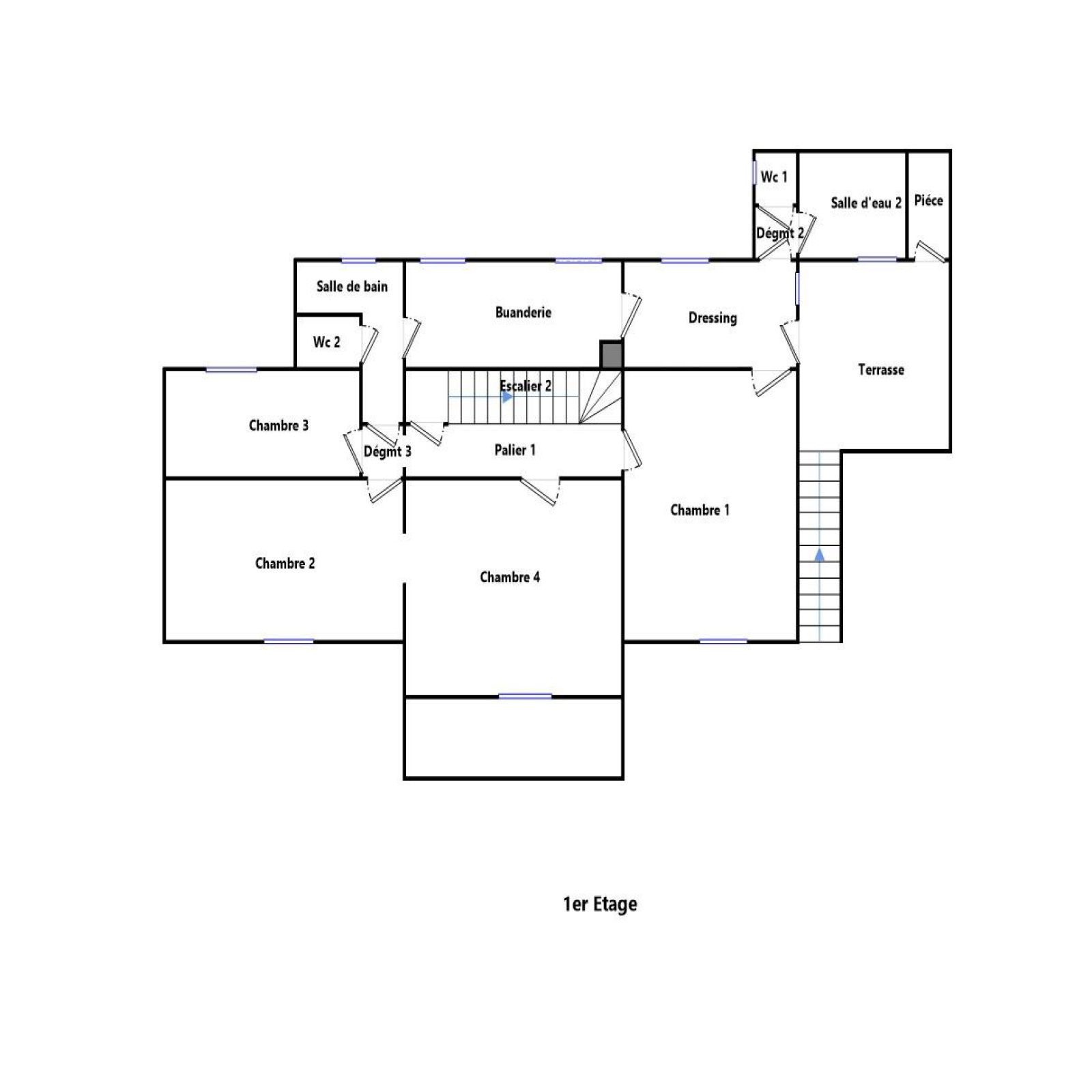
À vendre, Valence (26000) dans le quartier prisé de Châteauvert-Lautagne, maison de caractère sur trois niveaux qui allie charme, beaux volumes et d'un emplacement idéal à proximité de toutes les commodités : écoles, commerces et transports.! Après l'entrée par le jardin et une terrasse, vous accédez à la maison par une véranda, un hall d'entrée spacieux qui dessert une cuisine séparée, un salon, un séjour, un cellier, une salle d'eau avec WC, un local technique, une chaufferie, un atelier et un garage; Au premier étage, le palier dessert quatre chambres, une salle de bain, une salle d'eau, deux WC, un dressing, une buanderie et deux terrasses intimistes; Au deuxième étage, vous trouverez une cinquième chambre. Les menuiseries sont en double vitrage, le chauffage est au gaz, de nombreux travaux ont été effectués et vous n'aurez plus qu'a vous installer. DPE ANCIENNE VERSION. Montant estimé des dépenses annuelles d'énergie pour un usage standard : 2150 € par an (année de référence : 2015). Les informations sur les risques auxquels ce bien est exposé sont disponibles sur le site Géorisques : www.georisques.gouv.fr . Cette maison vous est proposée à la vente en exclusivité par l'agence DE MAISON PIERRE.

Bilan énergétique

Diagnostics énergetiques
Consommation énergétique
A B C D E F G
Emission de gaz à effet de serre
A B C D E F G
DPE ANCIENNE VERSION
A propos de ce bien Caractéristiques de ce bien
  • Surface 204 m²
  • carrez 204 m²
  • terrain 391 m²
  • 5 chambre(s)
  • 1 salle(s) de bain
  • 2 salle(s) d'eau
  • construit en 1930
  • cuisine séparée (semi-équipée)
  • Chauffage central : chaudière (gaz de ville)
  • 1 garage(s)
  • exposition Est-Ouest
  • 3 niveau(x)
  • balcon
  • terrasse

Financier

Informations financières
Prix de vente 430 000 € Les honoraires d'agence seront intégralement à la charge du vendeur
Taxe foncière annuelle 2 992 €

Autour du bien

Découvrez le quartier

Simulation

Calcul des mensualités
* Champs obligatoires
DE MAISON PIERRE Agence