Page suivante
Page précédente
Romans-sur-Isère (26100)

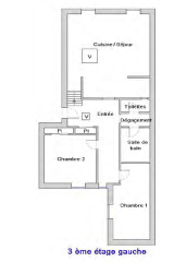
Appartement 3 pièce(s) 2 chambre(s) 74.09 m²

1
95 000 €
Réf 10206

A vendre, Romans sur Isère (26100), Rue pêcherie, à 1 mn à pied des quais et de la place Maurice Faure, situé au 3ème et dernier étage sans ascenseur d'une petite copropriété sécurisée de 8 logements, grand appartement de type 3 comprenant une pièce de vie avec cuisine aménagée de plus de 33 m², deux chambres, une salle de bain, un wc et un coin buanderie. Le chauffage et l'ECS sont fournis par une chaudière gaz, les menuiseries sont en double vitrage pvc et les volets roulants. Montant estimé des dépenses annuelles d'énergie pour un usage standard : entre 1130€ et 1570€ par an (années de référence : 2021, 2022, 2023). Les informations sur les risques auxquels ce bien est exposé sont disponibles sur le site Géorisques : www.georisques.gouv.fr . Cet appartement vous est proposé à la vente en exclusivité par l'agence DE MAISON PIERRE.

Bilan énergétique

Diagnostics énergetiques
Consommation énergétique
A B C D E F G
Emission de gaz à effet de serre
A B C D E F G

Montant estimé des dépenses annuelles d'énergie pour un usage standard est compris entre 1 130 € et 1 570 € . Prix moyens des énergies indexés sur les années 2021, 2022 et 2023 (abonnements compris).

A propos de ce bien Caractéristiques de ce bien
  • Surface 74,09 m²
  • carrez 74,09 m²
  • séjour 33,61 m²
  • 2 chambre(s)
  • 1 salle(s) de bain
  • cuisine américaine (semi-équipée)
  • Chauffage individuel : chaudière (gaz de ville)
  • 3ème étage
  • 3 étage(s)
  • interphone

Info copro

Copropriété
  • Copropriété Oui
  • Lot n° 8
  • Nombre de lots 8
  • Quote part annuelle des charges 380 €
  • Plan de sauvegarde Non
  • Statut du syndic Pas de procédure en cours

Financier

Informations financières
Prix de vente 95 000 € Les honoraires d'agence seront intégralement à la charge du vendeur
Taxe foncière annuelle 823 €

Autour du bien

Découvrez le quartier

Simulation

Calcul des mensualités
* Champs obligatoires
DE MAISON PIERRE Agence