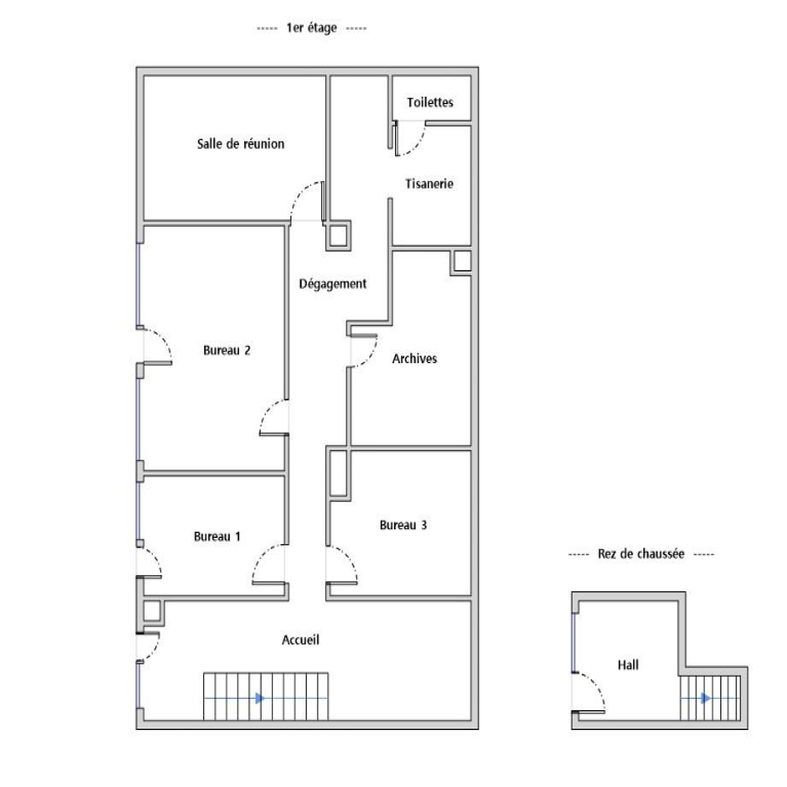
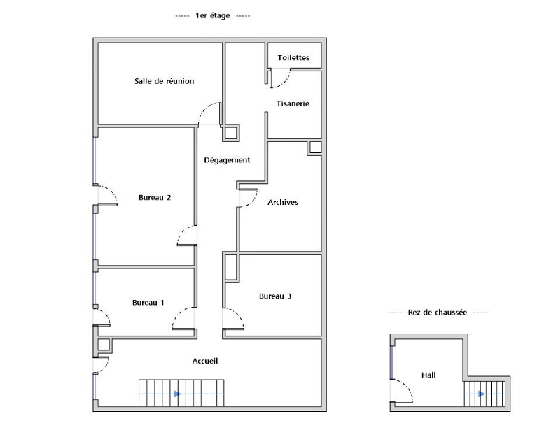
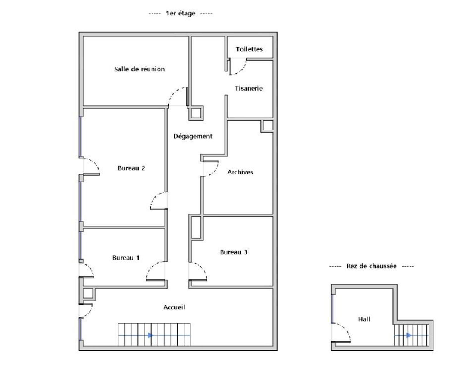
A vendre, VALENCE (26000), dans l’avenue Victor Hugo prisée des valentinois, au sein de la copropriété LES ALLEES HUGO, local professionnel de 110,8 m² avec accès indépendant de la rue composé d’un hall d’entrée, d’un escalier donnant accès à un espace attente et détente lumineux, 3 bureaux chaleureux et modulables, une salle de réunion, des sanitaires et une salle d’archives. Les espaces sont fonctionnels, soignés et adaptés à un usage immédiat, avec sols en parquet et carrelage, menuiseries double vitrage, le chauffage et la climatisation sont fournis par une pompe à chaleur air/air. Stationnement libre dans la copropriété et facile dans la rue. Son implantation dans une rue à forte fréquentation est idéale pour l’exercice d’une activité libérale ou professionnelle ne recevant pas de public (Pas d’accès PMR). Montant estimé des dépenses annuelles d'énergie pour un usage standard : 1038€. Les informations sur les risques auxquels ce bien est exposé sont disponibles sur le site Géorisques : www.georisques.gouv.fr . Ces bureaux vous sont proposés à la vente en exclusivité par l'agence DE MAISON PIERRE.
Bureaux 5 pièce(s) 110.8 m²
Bilan énergétique
Diagnostics énergetiquesMontant estimé des dépenses annuelles d'énergie pour un usage standard est compris entre 1 038 € et 1 038 € . Prix moyens des énergies indexés sur les années 2021, 2022 et 2023 (abonnements compris).
- Surface 110,80 m²
- construit en 2006
- Chauffage individuel : air pulsé (pompe à chaleur)
- 1 étage(s)
- interphone
Financier
Informations financièresAutour du bien
Découvrez le quartier
Les informations recueillies sur ce formulaire sont enregistrées dans un fichier informatisé par La Boite Immo agissant comme Sous-traitant du traitement pour la gestion de la clientèle/prospects de l'Agence / du Réseau qui reste Responsable du Traitement de vos Données personnelles.
La base légale du traitement repose sur l'intérêt légitime de l'Agence / du Réseau.
Elles sont conservées jusqu'à demande de suppression et sont destinées à l'Agence / au Réseau.
Conformément à la loi « informatique et libertés », vous disposez des droits d’accès, de rectification, d’effacement, d’opposition, de limitation et de portabilité de vos données. Vous pouvez retirer votre consentement à tout moment en contactant directement l’Agence / Le Réseau.
Consultez le site https://cnil.fr/fr pour plus d’informations sur vos droits.
Si vous estimez, après avoir contacté l'Agence / le Réseau, que vos droits « Informatique et Libertés » ne sont pas respectés, vous pouvez adresser une réclamation à la CNIL.
Nous vous informons de l’existence de la liste d'opposition au démarchage téléphonique « Bloctel », sur laquelle vous pouvez vous inscrire ici : https://www.bloctel.gouv.fr
Dans le cadre de la protection des Données personnelles, nous vous invitons à ne pas inscrire de Données sensibles dans le champ de saisie libre.
Ce site est protégé par reCAPTCHA, les Politiques de Confidentialité et les Conditions d'Utilisation de Google s'appliquent.